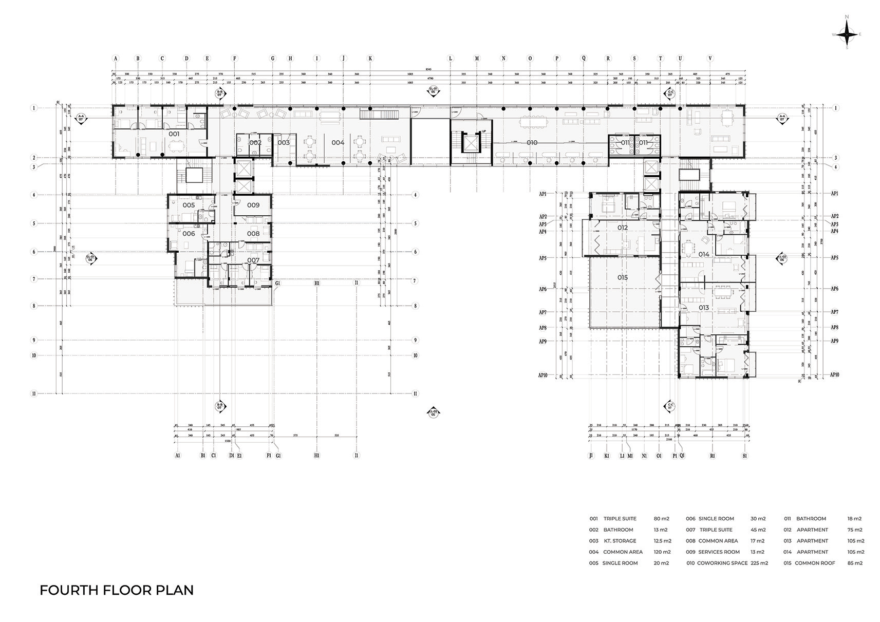
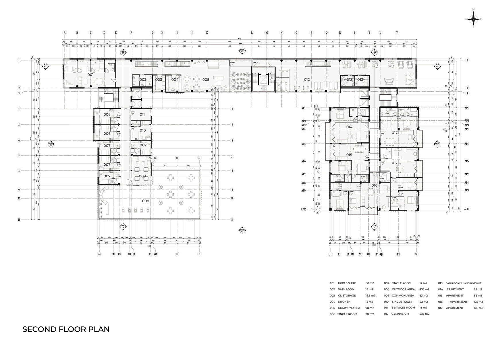
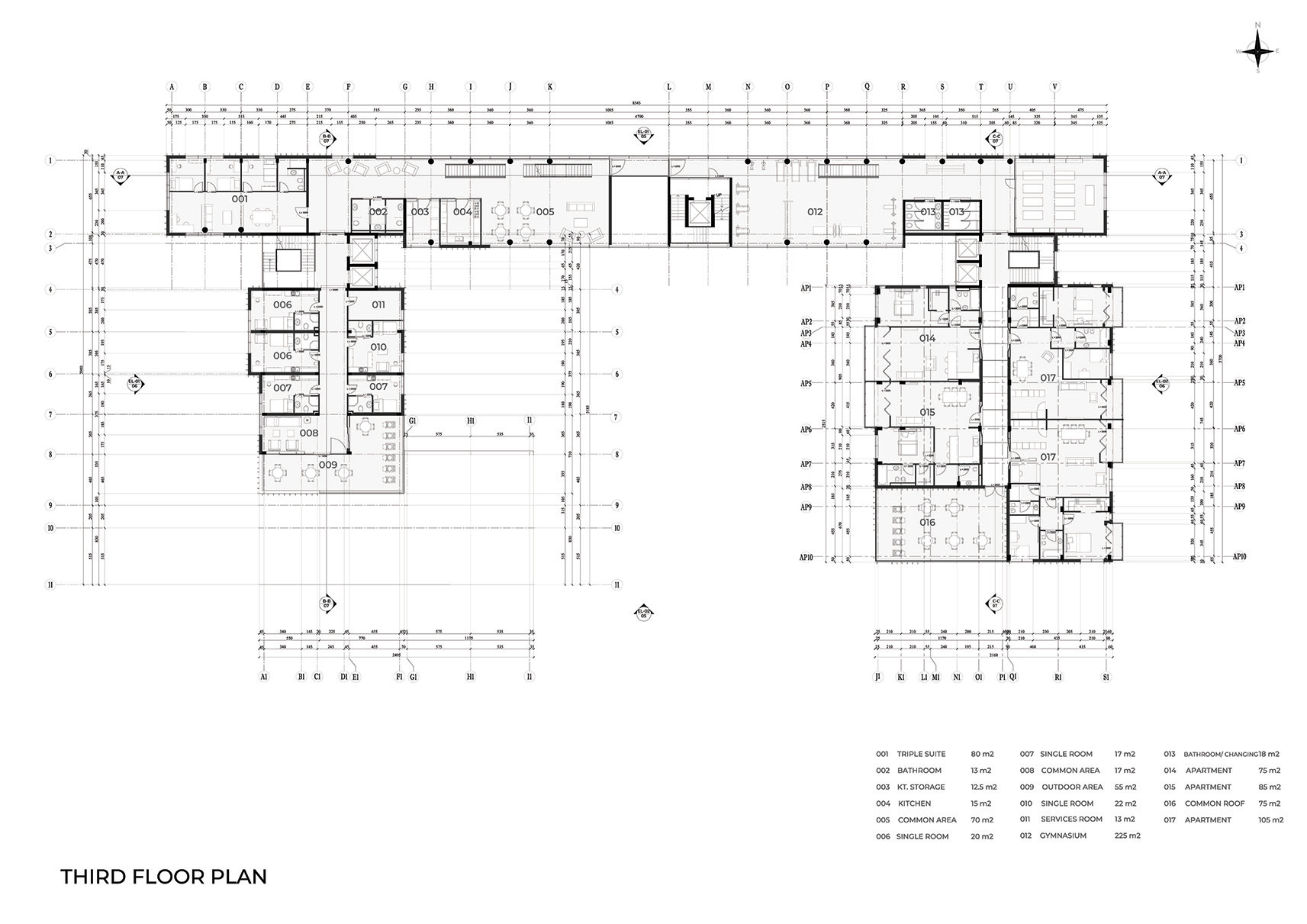
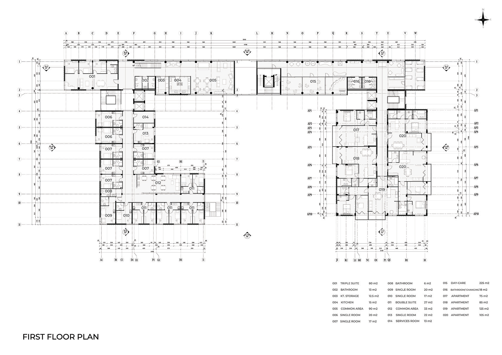
SERIO RESIDENTIAL COMPLEX
SUSTAINABLE BUILDING TECHNOLOGIES
Back to Architecture